Topshoofd 21

Topshoofd 21
373 x gezien
Status: Onder bod Soort object: Bouwjaar: Woonoppervlakte: Aantal kamers: Aantal slaapkamers:
Vraagprijs: € 275.000,00 Delen via
  • Omschrijving
  • Kenmerken
  • Foto's
  • Locatie

Omschrijving

DOOR DE GROTE BELANGSTELLING ZIJN DE BEZICHTIGINGEN VOL GEPLAND


Zoek jij een huis met potentie?


Gezocht: een handige klusser die een fijne tussenwoning, waar de tijd wat heeft stilgestaan, wil transformeren tot een paleisje dat garant staat voor jarenlang woonplezier! Twee rechterhanden, wat doorzettingsvermogen, of gewoon een goed voorstellingsvermogen zijn een pré als je een kijkje komt nemen op de Topshoofd 21.

Deze ruime en lichte tussenwoning heeft een heerlijke tuin op het oosten. Het is een blanco canvas dat wacht op jouw creatieve visie om het weer helemaal van deze tijd te maken. Word jij de nieuwe eigenaar die hier met enorm veel plezier gaat wonen? Lees dan snel verder!


De woning zelf

De woning ligt in een rustig hofje met voldoende parkeergelegenheid. Bij binnenkomst vind je de trapopgang naar de eerste verdieping, het toilet en de lichte doorzonwoonkamer. De grote raampartijen zorgen voor veel natuurlijk licht. De keuken bevindt zich aan de achterzijde van het huis met de bijkeuken en met toegang tot de diepe achtertuin.

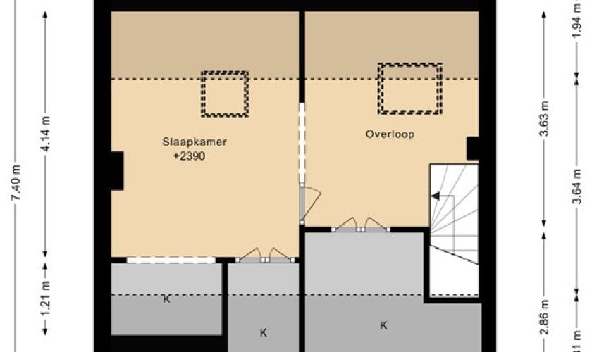
Op de eerste verdieping zijn er drie slaapkamers en een badkamer met wastafel, tweede toilet en bad/douche combinatie aan de voorzijde. Op de tweede verdieping is een vierde slaapkamer te vinden, waarbij de mogelijkheid bestaat om de ruimte aanzienlijk te vergroten door het plaatsen van een dakkapel.


Een absolute plus is de circa 13 meter diepe achtertuin op het oosten, met een fraaie ligging aan een singel. Hierdoor geniet je van een vrij gevoel en een groene omgeving. Direct naast de woning bevinden zich speelvoorzieningen, wat de woning extra aantrekkelijk maakt voor gezinnen. De tuin is verder voorzien van een schuur en een handige achteringang.


In het kort: jouw kansen op een rij

– Ruime eengezinswoning met volop mogelijkheden

– Energielabel D

– Kunststof kozijnen

– Helemaal naar eigen smaak te maken

– Ruime achtertuin op het oosten

– Rustige ligging in een hofje

– Voormalige huurwoning, direct beschikbaar

– Bestemd voor eigen bewoning


Kriebelen jouw handen al na het lezen hiervan? Wacht dan niet langer en plan snel een bezichtiging in aan voor de Topshoofd 21.

De verkoop is op basis van kosten koper en aanvaarding is in overleg.


Ons kantoor besteedt de uiterste zorg aan de betrouwbaarheid en actualiteit van de gegevens in de door ons samengestelde verkoopbrochure. Onjuistheden en onvolledigheden kunnen echter voorkomen.