- Omschrijving
- Kenmerken
- Foto's
- Locatie
Omschrijving
Wonen in een ruime 2-onder-1-kapwoning op een royaal perceel!
WELKOM op Reiger 65! Deze aantrekkelijke woning biedt alles wat je zoekt: een gezellige woonkamer, een fraaie keuken, meerdere ruime slaapkamers én parkeren op eigen terrein.
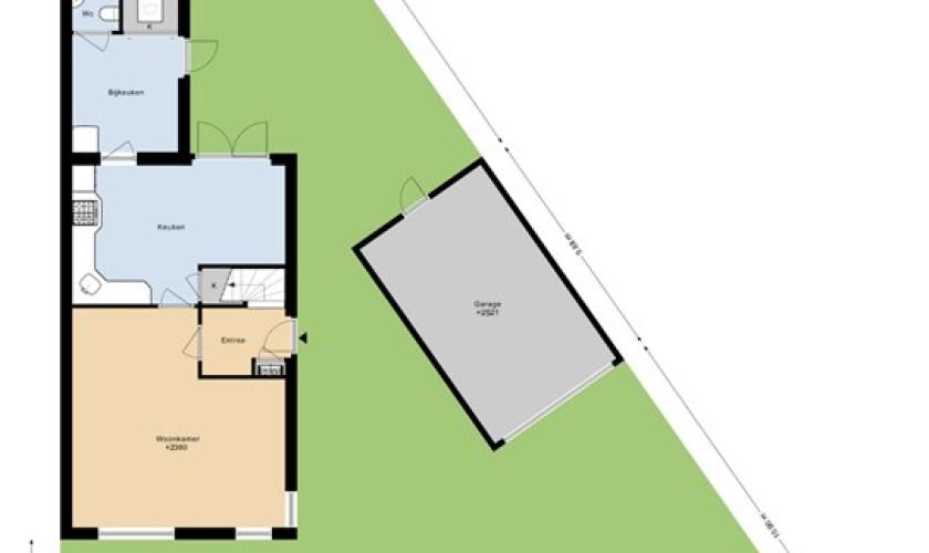
Wat deze woning extra bijzonder maakt? De ligging als laatste in de rij! Hierdoor beschik je over een royaal perceel van maar liefst 298 m² en is er aan de zijkant een prachtige extra ruimte ideaal voor een grote schuur, hobbyruimte of extra opslag.
Kortom: een heerlijk thuis waar je direct kunt genieten van ruimte, comfort en mogelijkheden. Perfect voor doorstromers die nét dat beetje extra zoeken.
Wonen in een groene en kindvriendelijke omgeving
De omgeving is uitstekend! Je woont in een rustige, groene en kindvriendelijke buurt. Basisscholen bevinden zich op korte afstand, wat zorgt voor een ontspannen ochtendroutine. Voor de dagelijkse boodschappen fiets je eenvoudig naar het winkelcentrum en met de auto bereik je in korte tijd het oude dorp.
Indeling van de woning
Via de hal, met toegang tot de trapopgang, betreed je de woonkamer. Deze is netjes afgewerkt en vormt een fijne plek om te ontspannen.
Aansluitend vind je de ruime woonkeuken aan de achterzijde van de woning. Hier geniet je van volop licht en ruimte – dé plek om samen te komen met familie en vrienden.
Achter de keuken bevindt zich de praktische bijkeuken, met opstelplaats voor was- en droogapparatuur, het toilet en toegang tot de achtertuin.
Verdieping
Op de eerste verdieping zijn drie slaapkamers en een moderne badkamer gesitueerd. De badkamer is voorzien van een inloopdouche, wastafelmeubel en toilet.
Via een vaste trap bereik je de zolderverdieping. Hier vind je een royale vierde slaapkamer met bergruimte achter de knieschotten. Dankzij de dakramen is het hier heerlijk licht. Daarnaast is er via een vlizotrap nog extra bergruimte beschikbaar.
Tuin
De tuin is een absolute meerwaarde! Dankzij het ruime perceel van 298 m² heb je hier volop mogelijkheden. De fraai aangelegde tuin biedt een mooie combinatie van groen en bestrating.
De extra zijruimte maakt deze woning uniek en biedt vele mogelijkheden.
Alles nog even op een rij:
• Perceeloppervlakte: 298 m²
• Gelegen laatste in de rij
• Extra brede zijtuin met mogelijkheden
• Ruime en lichte woning
• Kindvriendelijke en groene buurt
• Parkeren op eigen terrein
• In overleg te aanvaarden
Ben je op zoek naar een ruime woning met extra mogelijkheden, een fijne ligging en volop potentie? Dan is Reiger 65 absoluut een bezichtiging waard!
- Overdracht
- Aanvaarding
- Conditie
- Koop / HuurKoop
- Vraagprijs€ 569.000,00
- AdresReiger 65
- Bouwvorm
- Soort object
- Bouwjaar
- BouwvormBestaande bouw
- Ligging
- Indeling
- Woonoppervlakte
- Perceeloppervlakte
- Aantal slaapkamers
- Aantal badkamers
- Aantal kamers
- Aantal woonlagen
- Energie
- Energielabel
- Verwarming
- Merk/type C.V.
- Bouwjaar C.V.
- Isolatie
- Opmerking
- Zonnepanelen
- Buitenruimte
- Tuin
- Ligging Achtertuin/Balkon
- Afmeting achtertuin
- Kwaliteit achtertuin
- Opmerking
- Bergruimte
- Schuur/Berging
- Type
- Gefundeerd
- Geïsoleerd
- Voorzieningen
- Overig
- Soort kozijnen
- Dakraam
- Zonwering
- Rookkanaal